Získali jsme 3. odměnu v architektonické soutěži na nový městský park pod hradbami ve Skalici.
Cílem soutěže bylo navrhnout revitalizaci nevyužívaného území v kontaktu s historickým centrem a vytvořit moderní veřejný prostor, který bude přirozeným pokračováním městské struktury, místem pro rekreaci, komunitní dění i klidné pobývání.
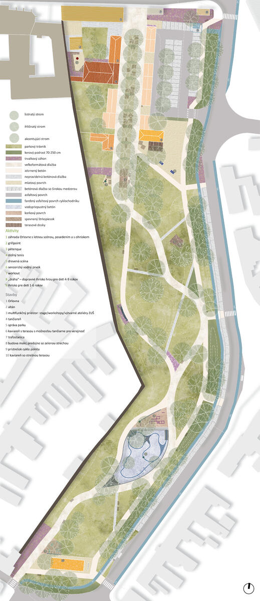
Náš návrh je založený na transparentnosti území, nabízí možnost rychlého i ležérního přesunu a aktivity rozprostřené po celém parku. Kompozice pracuje s kontrastem rušnějších okrajů a klidového středu, jemně modelovaný terén podporuje pohyb i odpočinek.
Pod hradbami vzniká místo čilého setkávání, kde se historie přirozeně potkává s novou podobou veřejného prostoru.
Autorkami návrhu jsou Karolína Vašínová, Markéta Majkusová a Alexandra Hrubjaková







